Nový skolaudovaný 2 podlažný RD Kráľová pri Senci
€207900
Popis
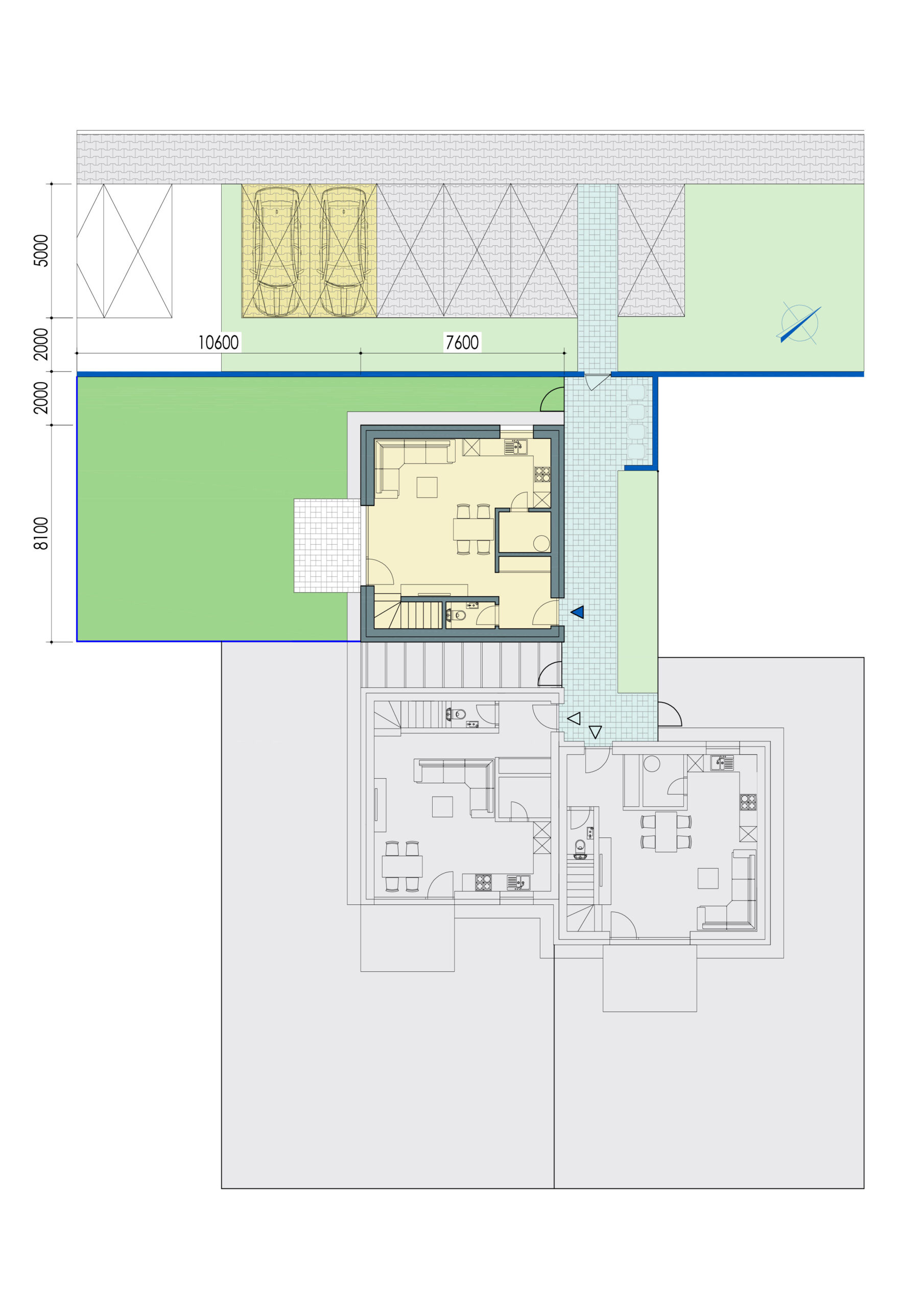
Ponuka na predaj dvojpodlažných (troj-izbový) samostatne stojaci RD v štádiu Holodom Štandard. ÚP: 86,9m2, pozemok: 122m2. RD sa nachádza v 1 kilometer od Senca vzdialenej obci Kráľová pri Senci. Dom má vlastnu záhradu a parkovacie státie. Samotná lokalita z tohto projektu robí skutočné kráľovstvo – s perfektným občianskym vybavením, cestnými komunikáciami či množstvom aktivít v okolí. Energetický certifikát A.
Popis
- ID Nehnuteľnosti 997
- Cena €207900
- Druh nehnuteľnosti Domy
